Skip to content.
|
Skip to navigation
Personal tools
Log in
Register
Search Site
only in current section
Advanced Search…
Sections
Human Services Plan
Waterloo Estate Stage 1
Waterloo Metro Quarter
Elizabeth St SSP
Explorer Street
Eveleigh Heritage
RNE - Paint Shop
RNE - Clothing Store
Redfern Station
Find a Service
REDWatch Facebook
Navigation
Home
About REDWatch
Our Community
Government Sites Plans & Activities
Redfern Waterloo Maps
Built Environment Plan Phase 1 - The State Significant Sites
Built Environment Plan Phase 2 - Public Housing Estates
Human Services Plans
Employment & Enterprise Plan
Eveleigh Rail Heritage
RWA Operational Archive
DoP Major Projects
SMDA BEP2 & Urban Renewal Studies
Rail Corridor Expansion
Waterloo Public Housing & Metro Station Redevelopment
The 2015 Announcements
Earlier Studies on Waterloo & Redfern Public Housing Redevelopment
Waterloo Redevelopment 2016
Inderpendent Assistance during Master Planning
Community Activity
Waterloo Metro Quarter Master Planning
Joint "Master Plan" studies and consultants
Joint Engagement and Visioning
Waterloo Metro Tunnel and Excavation
State Significant Precinct (SSP) Declarations and Study Requirements
Waterloo Estate Options
Waterloo Estate Preferred Plan
City of Sydney involvement in Waterloo
Waterloo South rezoning proposal
Waterloo Estate (South) Planning Proposal Exhibition March 2022
DPIE Waterloo South Studies Workshops 8 and 9 December 2021
Waterloo South Park
Waterloo Garden & Cook buildings
Sunday Telegraph p27 31 May 2020
Waterloo South Park 2
Waterloo south map
Council Option 2019 proposed park
Communities Plus website on Waterloo South lodgement
LAHC Waterloo South Zoning Proposal 2020
LAHC Waterloo South Zoning Proposal 2020
City of Sydney webinar on The Waterloo planning proposal
Waterloo Public Housing Newsletters
LAHC post zoning planning.
Waterloo South Stage 1
Elizabeith Street SSDA
Central-Eveleigh Sydney Inovation and Technology Precinct
Explorer Street Eveleigh Renewal
Other Government Involvement in RW
Other RW Issues
Have Your Say
Consultation Links
Past Events
Event Posters
2004-2012 Statements
Log in
Login Name
Password
Cookies are not enabled. You must enable cookies before you can log in.
Forgot your password?
You are here:
Home
/
Government Sites Plans & Activities
/
Waterloo Public Housing & Metro Station Redevelopment
/
Waterloo South rezoning proposal
/
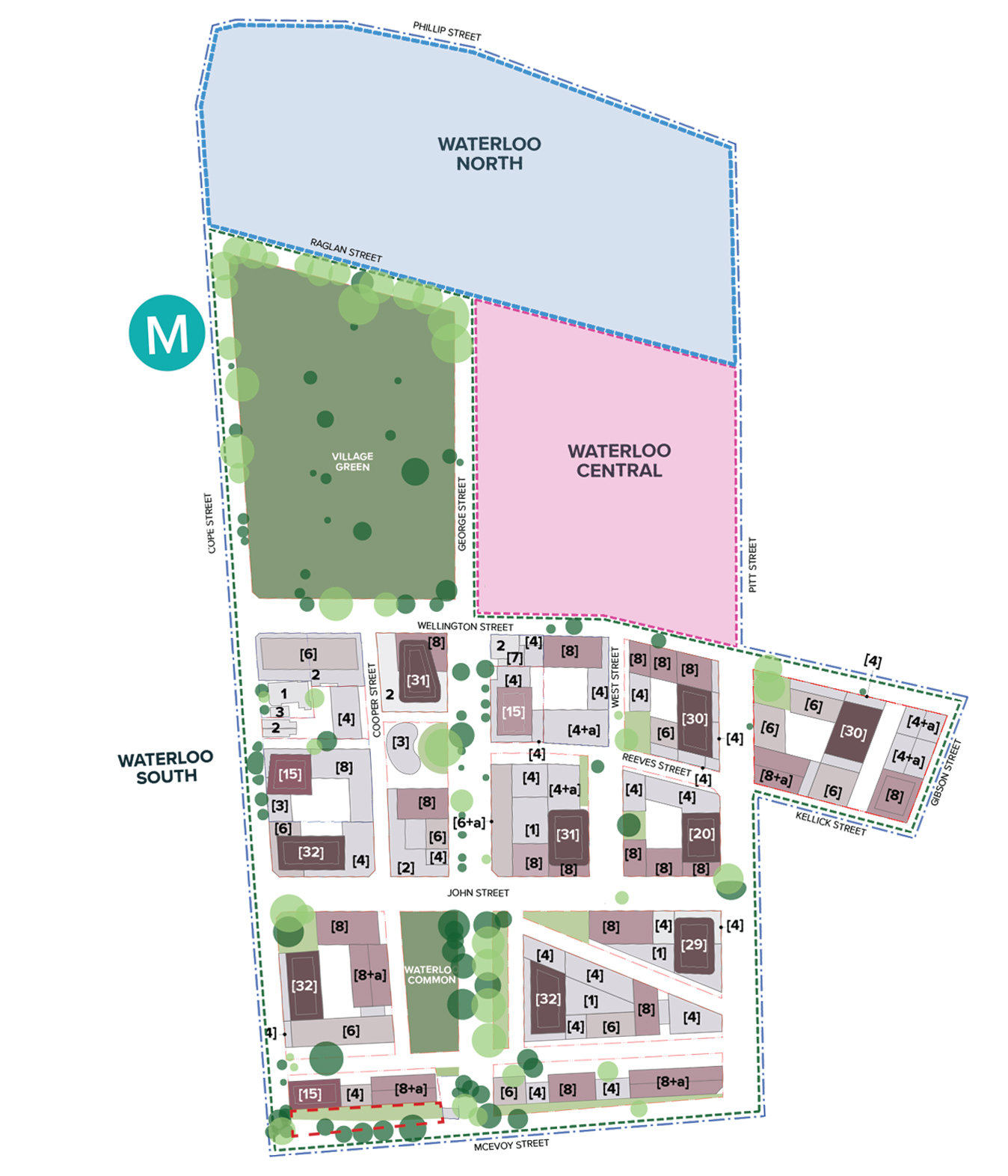
LAHC Waterloo South Zoning Proposal 2020
Info
LAHC Waterloo South Zoning Proposal 2020
LAHC Waterloo South Zoning Proposal 2020
Full-size image:
675.2 kB
|
View
Download
Powered by Plone & Python
Accessibility
Contact